BACK TO RESIDENCES

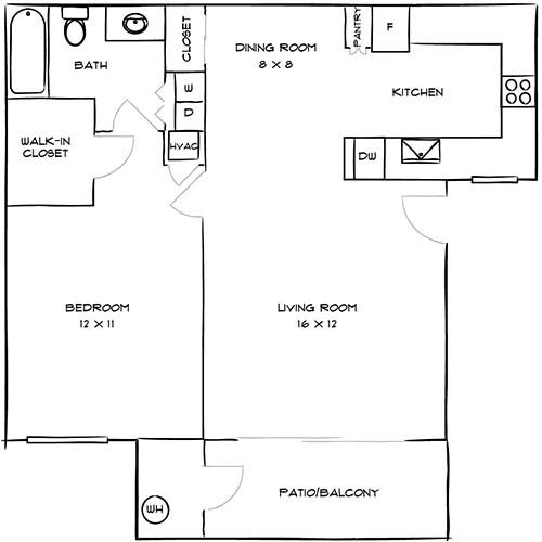
Broad Beach

Diagram
Malibu Canyon Apartments - 1 Bed / 1 Bath - Broad Beach
Malibu Canyon Apartments - Calabasas, CA - Kitchen

One clear monthly price that includes 1 gig high-speed internet and all required fees—no surprises, just seamless living.

Available Units